Баня из кедра 3,4х4м
"Оптима"
Баня-конструктор "ОПТИМА" из кедра - это готовое решение для создания уютного и комфортного места отдыха на вашем участке.

Изготовленная из кедра ангарского, эта баня-конструктор отличается своей прочностью и устойчивостью к воздействию внешней среды. Баня, построенная из этой породы древесины, простоит много лет без какой-либо химической обработки. Кедр отличается впечатляющей износостойкостью: не гниет от высокой влажности, не трескается, не боится высоких и низких температур, не деформируется со временем.

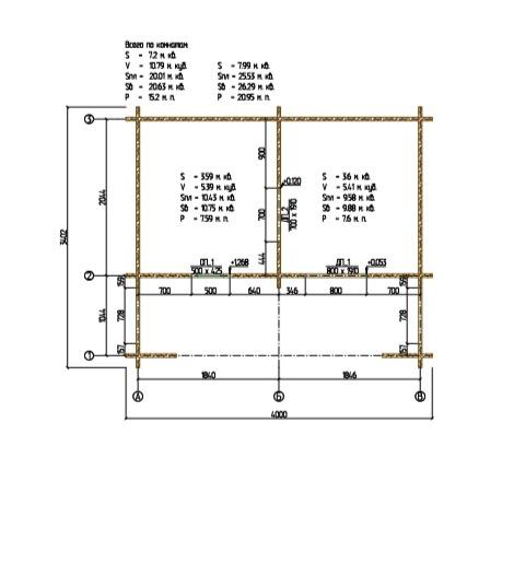
Баня-конструктор "Оптима" предлагается в виде "конструктора" для самостоятельной сборки. Сборка не требует профессиональных навыков, все комплектующие пронумерованы и сборка осуществляется по схеме, прилагаемой вместе с комплектом бани. Привлечение строительной и грузоподъемной техники не требуется. Ориентировочный срок сборки бани составляет от 2 до 5 дней. Баня-конструктор "Сделай Сам" имеет следующие характеристики:

Выбирая баню-конструктор "Сделай Сам" из кедра, вы получаете уютное и комфортное место отдыха на вашем участке, собранное Вашими собственными руками.

В комплект поставки не входят оконные и дверные блоки, отопительное и иное оборудование
Заказать
  • Тип
    Баня
  • Назначение

    Для дачи, для частного участка, для загородного дома

  • Комплектация
    Комплект бани для самостоятельной сборки
  • Тип древесины
    Кедр
  • Модель бани
    Оптима
  • Размер м2
    13,6
  • Длина м
    3.4
  • Ширина м
    4
  • Число комнат
    2
250000₽ 350540₽